【新築】オフィスパレア東那珂1

博多区東那珂2丁目の【新築】倉庫付事務所

旧3号線から入ってすぐの好立地

都市高速出入口も近く、各方面へのアクセス良好

駐車スペースは7〜9台駐車可能(小型含む)

2階事務所OAフロア,男女別トイレ,24時間セキュリティ

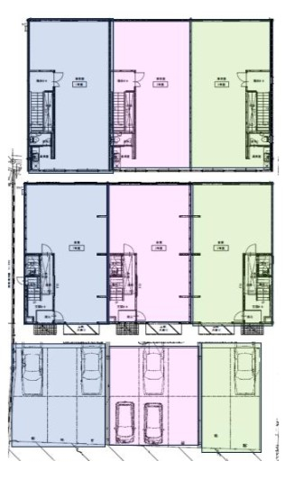
1階 倉 庫 23.30坪
2階 事務所 25.33坪
 合  計  48.63坪

用途地域:準工業地域

最終更新日2024年09月14日
物件種別倉庫(事務所付)
住所福岡市博多区東那珂2丁目4番53号
交通JR鹿児島本線 竹下駅 徒歩約25分
地下鉄空港線 東比恵駅 徒歩約25分
築年月令和6年7月
建物構造木造2階建
駐車場あり(--台) 
  • 画像1:【新築】オフィスパレア東那珂1,倉庫(事務所付),福岡市博多区東那珂2丁目4番53号
  • 画像2:【新築】オフィスパレア東那珂1,倉庫(事務所付),福岡市博多区東那珂2丁目4番53号
階数 賃料 管理費
共益費
敷金 その他 専有面積 備考 パノ
ラマ
引渡し 契約期間
契約条件
-- -- --
--
--   160.8m2
48.64坪
現在このタイプは満室です 相談 5年
税込
-- -- --
--
--   160.8m2
48.64坪
現在このタイプは満室です 相談 5年
税込
-- -- --
--
--   160.8m2
48.64坪
現在このタイプは満室です 相談 5年
税込
この物件にお問い合わせ
ページトップへ戻る