船越貸事務所(一棟貸し)

大野城市御笠川5丁目の一棟貸し事務所

敷地面積約360坪で駐車スペースも広々

九州自動車道,都市高速出入口が近く、各方面のアクセス良好

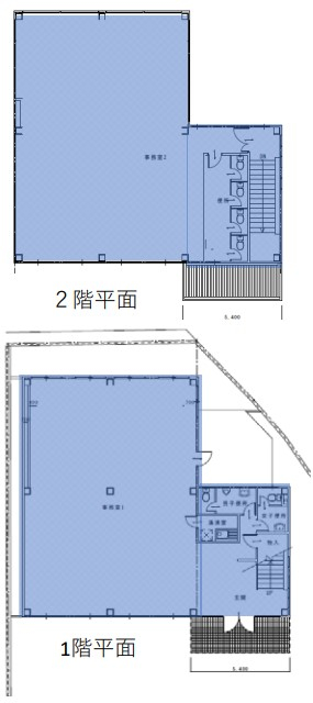
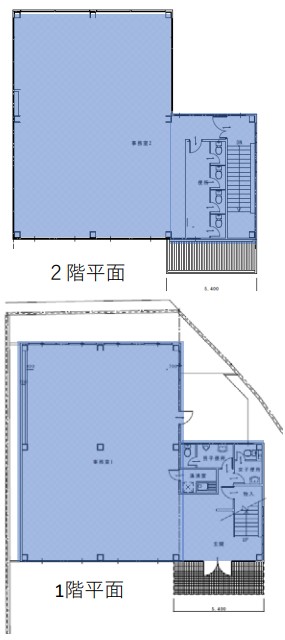
1階 事務所 47.29坪
2階 事務所 48.02坪
 合  計  95.31坪

男女別トイレ、エアコン付き

用途地域:準工業地域

最終更新日2026年03月10日
物件種別事務所, 駐車場付事務所
住所大野城市御笠川5丁目6番12号
交通西鉄天神大牟田線 春日原駅 徒歩約23分
築年月平成2年3月
建物構造鉄骨造2階建
駐車場あり(--台) 
  • 画像1:船越貸事務所(一棟貸し),事務所, 駐車場付事務所,大野城市御笠川5丁目6番12号
  • 画像2:船越貸事務所(一棟貸し),事務所, 駐車場付事務所,大野城市御笠川5丁目6番12号
  • 画像3:船越貸事務所(一棟貸し),事務所, 駐車場付事務所,大野城市御笠川5丁目6番12号
階数 賃料 管理費
共益費
敷金 その他 専有面積 備考 パノ
ラマ
引渡し 契約期間
契約条件
1-2 88万
--
--
6ヶ月 315.07m2
95.31
賃料800,000円(税別) 相談 5年
税込
この物件にお問い合わせ
ページトップへ戻る